The Frear Building | Troy Atrium

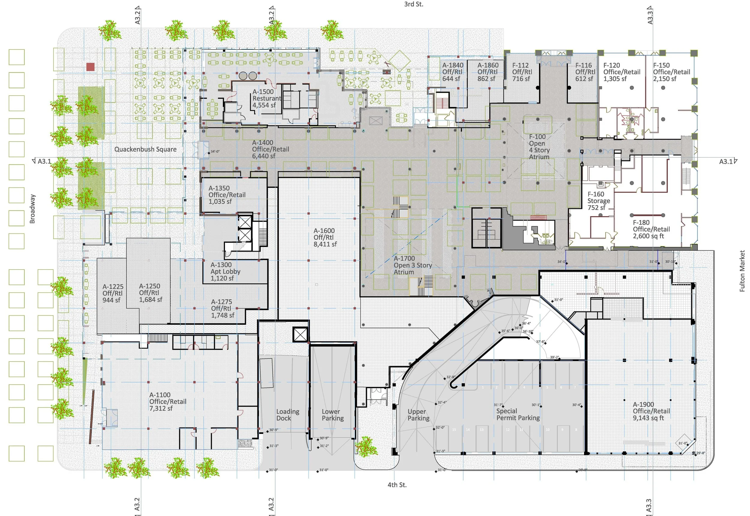
The Market Block

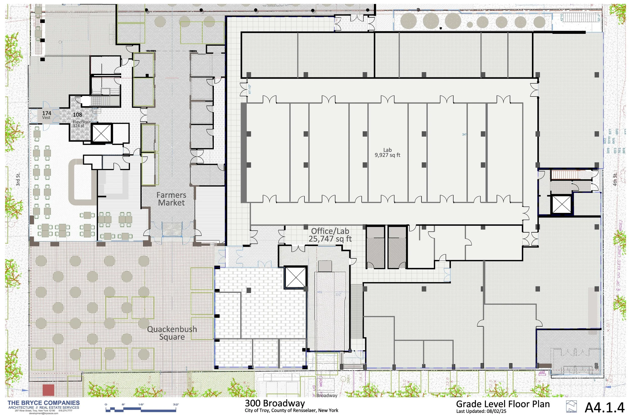
Mixed use REnovations for a Technology Tenant

  • Broadway streetscape improvements for an occasional pedestrian mall

  • Facade & entrance restoration/rebranding

  • The Winter Market (the Troy Farmers Market new winter home)

  • Frear skylight, common area moderization, stairway and atrium restoration

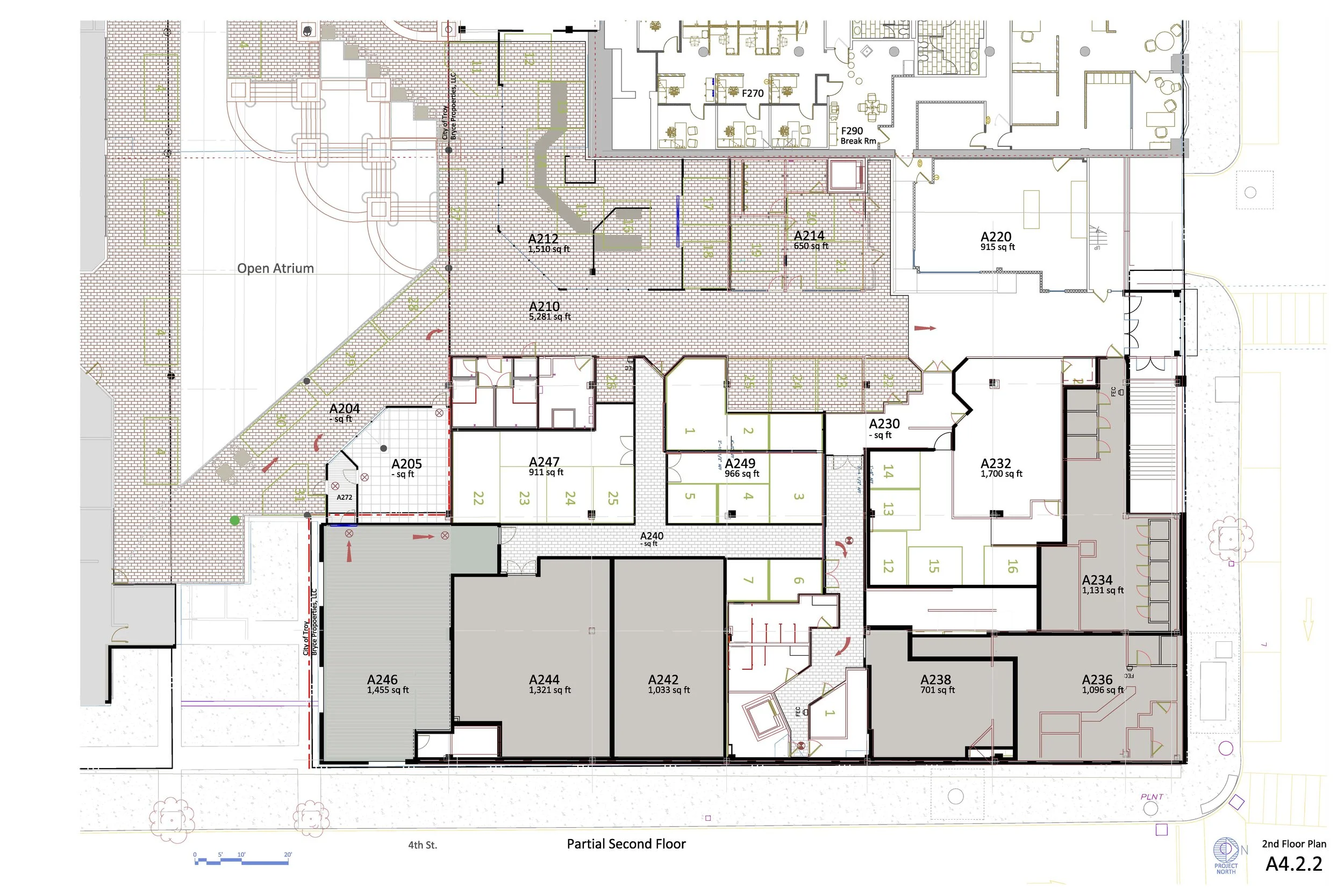
  • 12 apartments in renovated existing second floor space

  • 59 interior parking spaces (32 at 300 Broadway & 27 at 39 4th Street)