BRYCE
 

MASTER PLAN

SITE: TROY, NEW YORK

PROGRAM: MULTI

CLIENT: THE CITY OF TROY

 
 
 
PHASING

PHASING

Thumbnail.jpg
 
Diagram.jpg

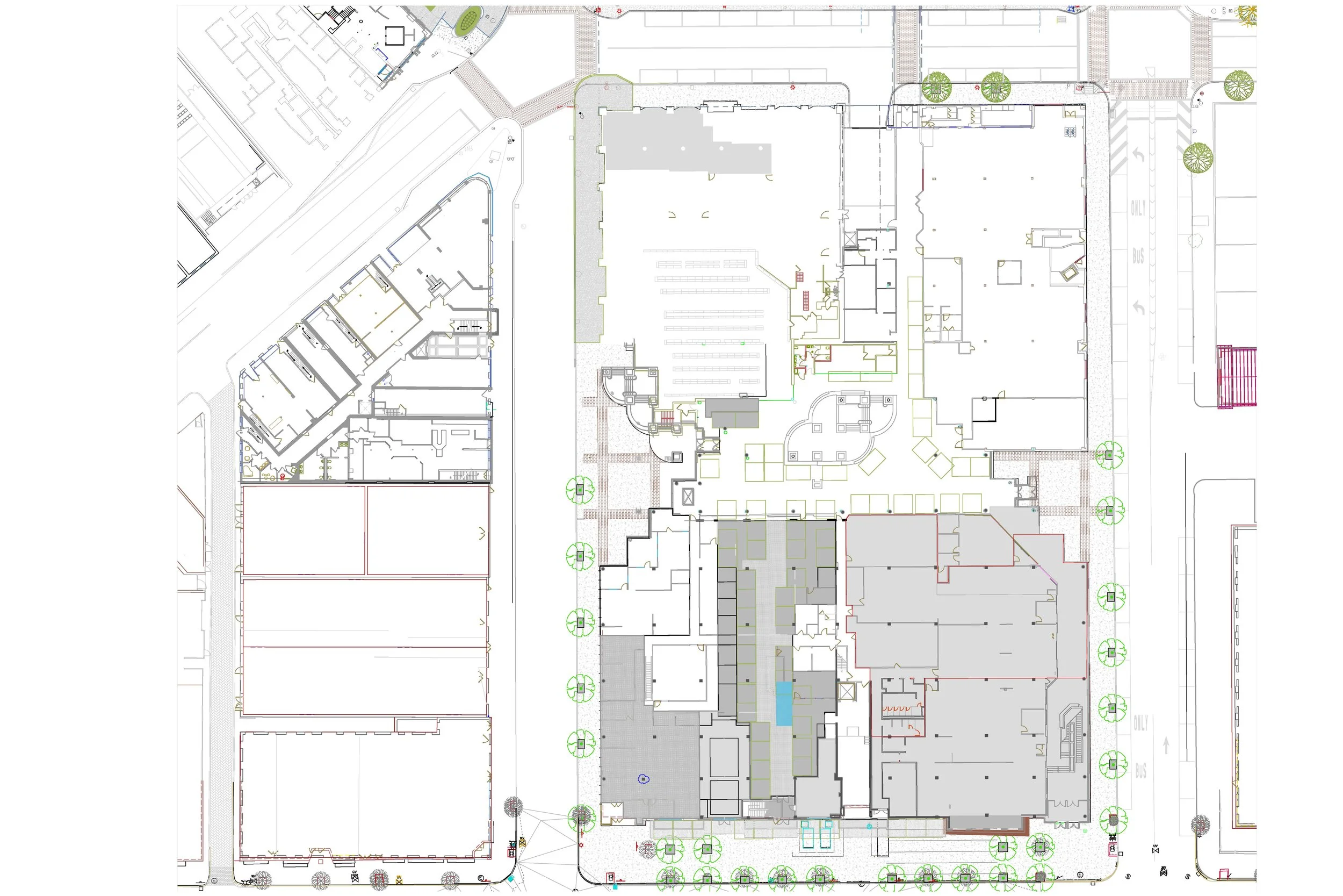
ATRIUM / FREAR

SITE: THE TROY ATRIUM

PROGRAM: MULTI

CLIENT: TROY WATERFRONT FARMER’S MARKET / TROY SENIOR’S CENTER

 

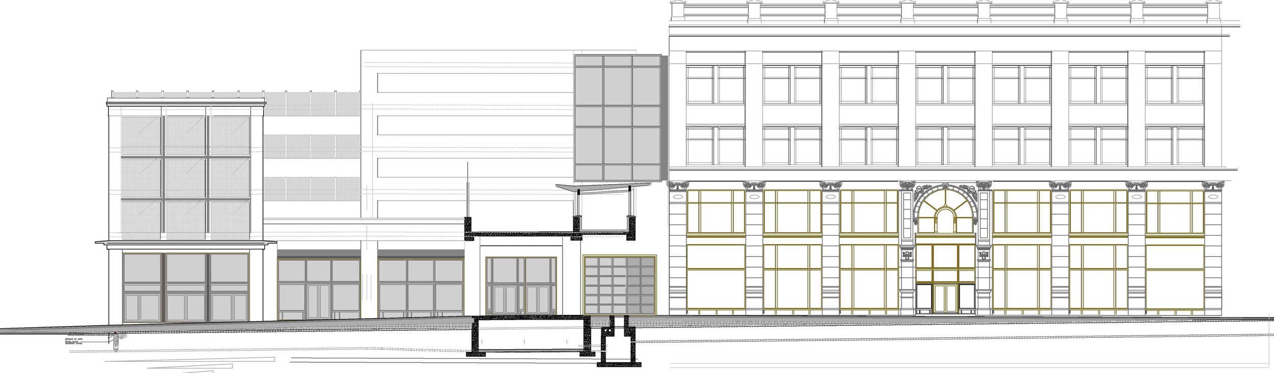
FOURTH STREET ELEVATION

 

BROADWAY ELEVATION _ PLAN

 

LOOKING NORTH

 

LOOKING EAST

FIRST FLOOR PLAN - Troy Atrium & Frear Build…

FIRST FLOOR PLAN - Troy Atrium & Frear Building

THIRD FLOOR PLAN - Troy Atrium & Frear Building                                                                                                      BROADWAY ELEVATION and SECOND FLOOR PLAN - Troy Atrium & Frear Building

THIRD FLOOR PLAN - Troy Atrium & Frear Building BROADWAY ELEVATION and SECOND FLOOR PLAN - Troy Atrium & Frear Building

BROADWAY ELEVATION - Troy Atrium

BROADWAY ELEVATION - Troy Atrium

FULTON STREET ELEVATION - Troy Atrium & Frear Building

FULTON STREET ELEVATION - Troy Atrium & Frear Building

Broadway StreetScape.jpg
 
Plan.jpg

500 FEDERAL

SITE: TROY, NEW YORK

PROGRAM: OFFICE / TRANSPORTATION

CLIENT: GREY CASTLE SECURITY

 
 
 

UNLIT INTERIOR VIEWS

 

LOOKING SOUTHEAST

 

LOOKING WEST

500 Fed 1-2 4 9 19.jpg
500 Site 3-4 4 15 19.jpg
500 Site 5-6 4 15 19.jpg
Thumbnail.jpg
 

UNCLE SAM TRANSIT CENTER

Plan.jpg

SITE: UNCLE SAM PARKING GARAGE

PROGRAM: TRANSPORTATION

CLIENT: CDTA

LOOKING EAST

 

2020 BUS PLAN

 

INTERIOR CIRCULATION

.

.

.

.

.

2030 BUS PLAN

CDTA Rear A2 4 9 19.jpg
CDTA Rear A6.41 4 9 19.jpg
Fulton Mall.jpg
Thumbnail.jpg
 

AFTERWORD

SITE: TROY, NEW YORK

PROGRAM: MULTI

CLIENT: THE CITY OF TROY

 

2030 PLAN

 

LOOKING WEST 2030

 

LOOKING SOUTH EAST 2030

Urban Renewal left blotches of suburban thinking in Troy’s historic fabric. Our self perception is often derived from our outward appearance. Some, not all, of our Urban Renewal appearance should be freshened. Warner Bros has 300,000,000 million users running out of the Market Block. Velan Studios is verging on next generation gaming. GreyCastle is making internet security’s future. LevRx is tackling pharmaceutical pricing’s injustice. And what can be said about the possibility of an Artificial Intelligence Center of Excellence where Rensselaer and Columbia collaborate?

These 2020 plans for the Troy innovation District move us forward, but with the pains suffered with this recent growth spurt we want to look further. We don’t want to undo work done today in ten years. The planning of 2030 reveals a lot. Improvements to the northeast corner of the Atrium might be unwise – that corner needs to be parking. If current momentum is maintained 2030 needs twice the parking and less people driving. The Uncle Sam Parking Garage (USPG) is sound but our consultants advise us that the cost of maintaining it going forward will equal the cost of replacing it. So to keep the momentum surging the garage comes down. Good news is we are told the USPG footings can be adapted accommodate our 2030 plans. If the USPG is being replaced then replacement parking needs to be staged so it exists before the USPG comes down or there will be 1,200 people with nowhere to park. And if you are building new parking it should accommodate the momentum – what can it accommodate – what can Troy become.

We can be optimistic aspiring to 2030. Our recent past is full of success. The initial shock of the recently adopted master plan is morphing into action. As planning for the realignment of River St. moves forward we gain confidence that maybe, just maybe, Troy’s retail can survive - and we want to believe that retail at 4th & Federal St. is viable. Retail just can’t work there without this vision. The vision needs to encourage an urban pedestrian Troy of tomorrow.

Bus Plan.jpg